Architecture, Design & Urbanism

Three Steps Up

THREE STEPS UP


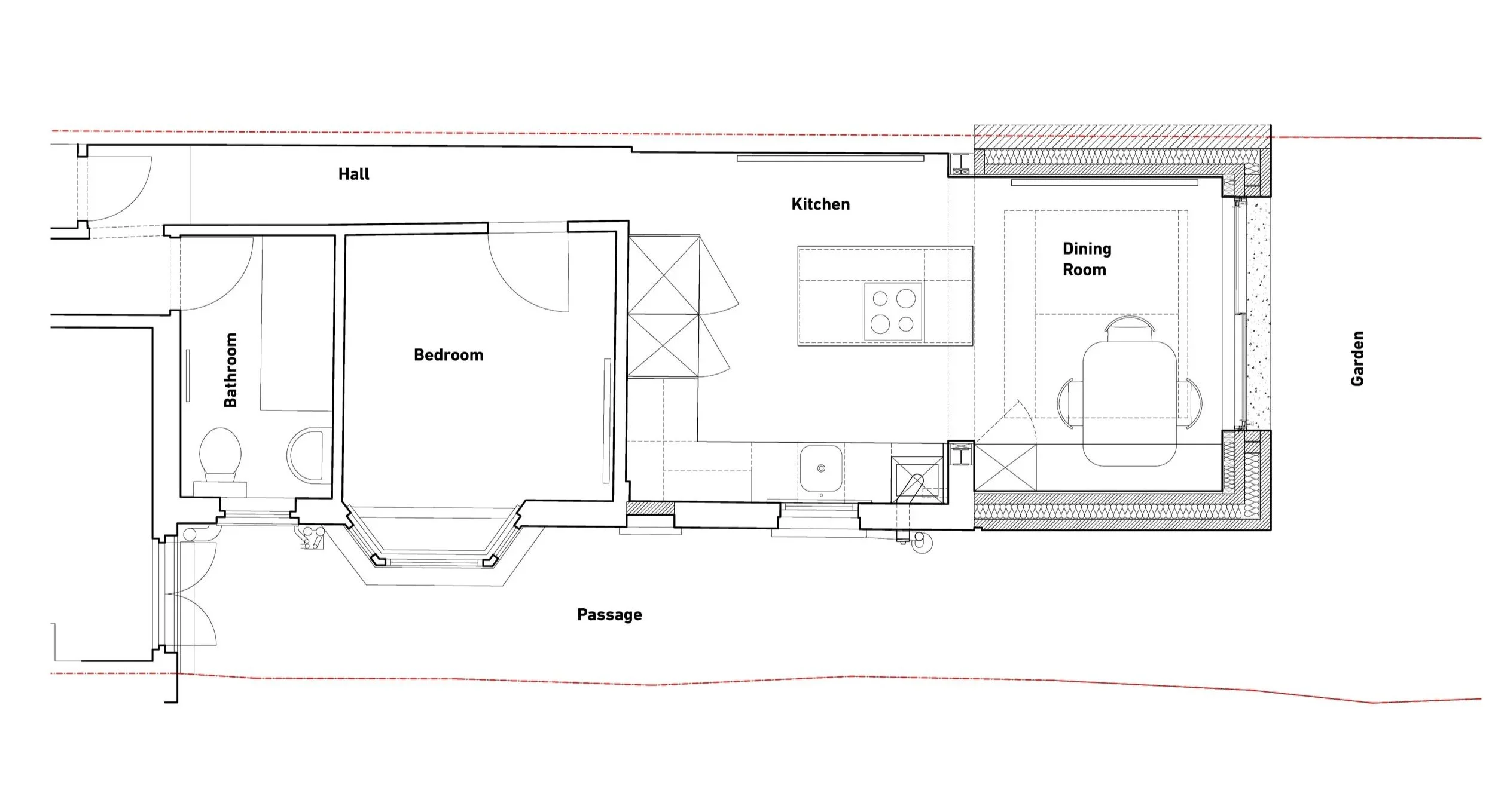
A modest rear extension to a ground floor flat in Haringey, extending just a few metres to unlock a better kitchen layout, improved daylight, and stronger garden connection. Handmade bricks and stepped precast concrete lintels frame elegant sliding doors, adding texture and quiet character.

The ground floor extended dining area measures just 7m2 and is roofed by a splayed glazed roof light providing ample ceiling height whilst introducing soft north light into the kitchen area beyond. The open plan kitchen layout includes a central island looking out over the rear garden.

Completed: February 2026

Extension area: 7m2 NIA

Location: Haringey


PHOTOGRAPHS BY ANNA STATHAKI

 
 
 

 

DRAWINGS