Architecture, Design & Urbanism

Red Lofts

Red Lofts

 

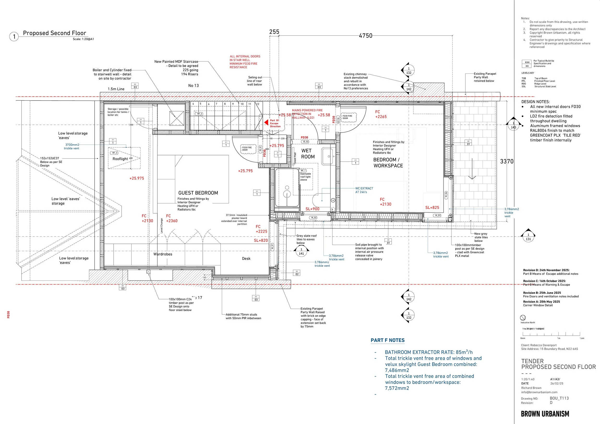
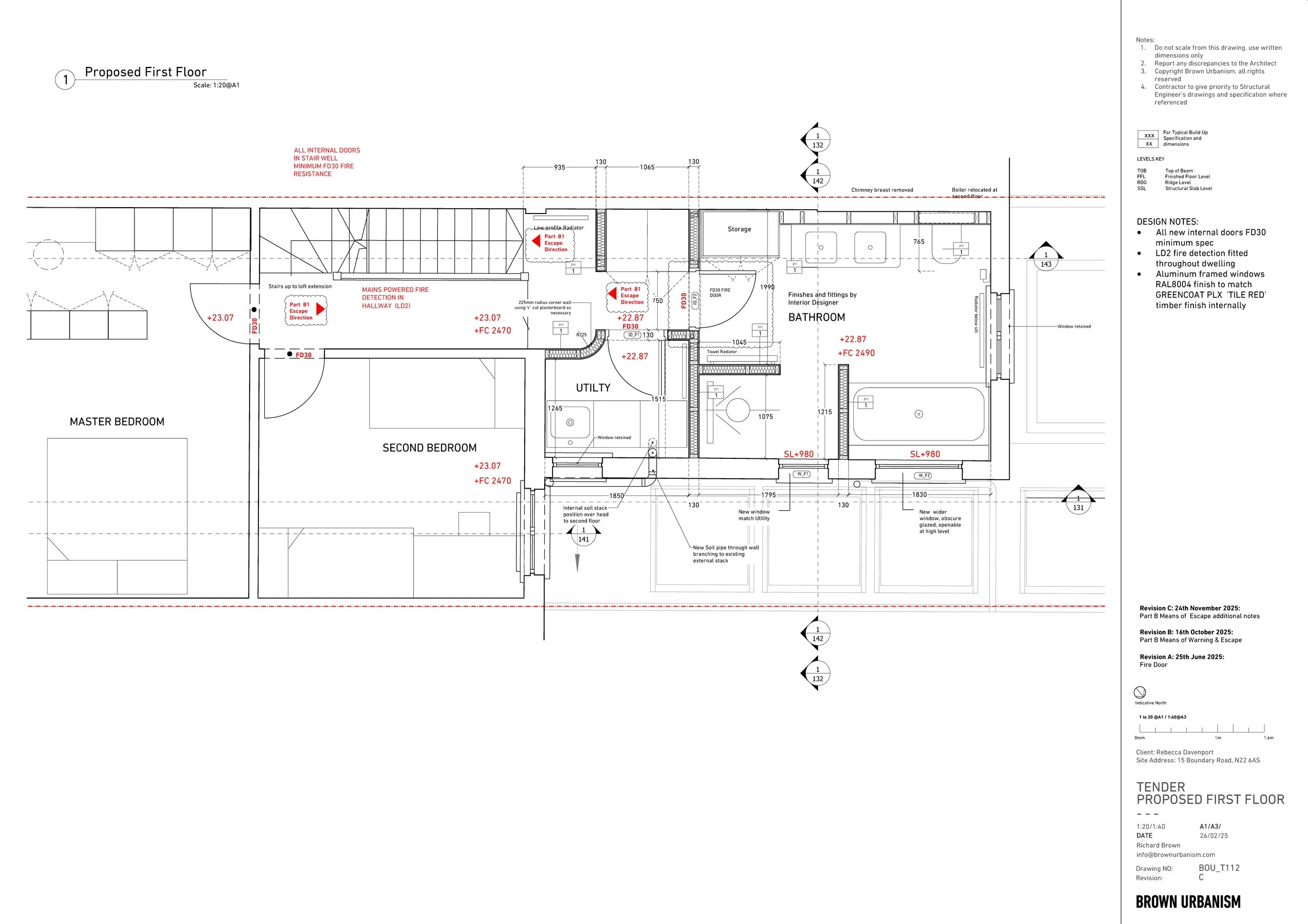
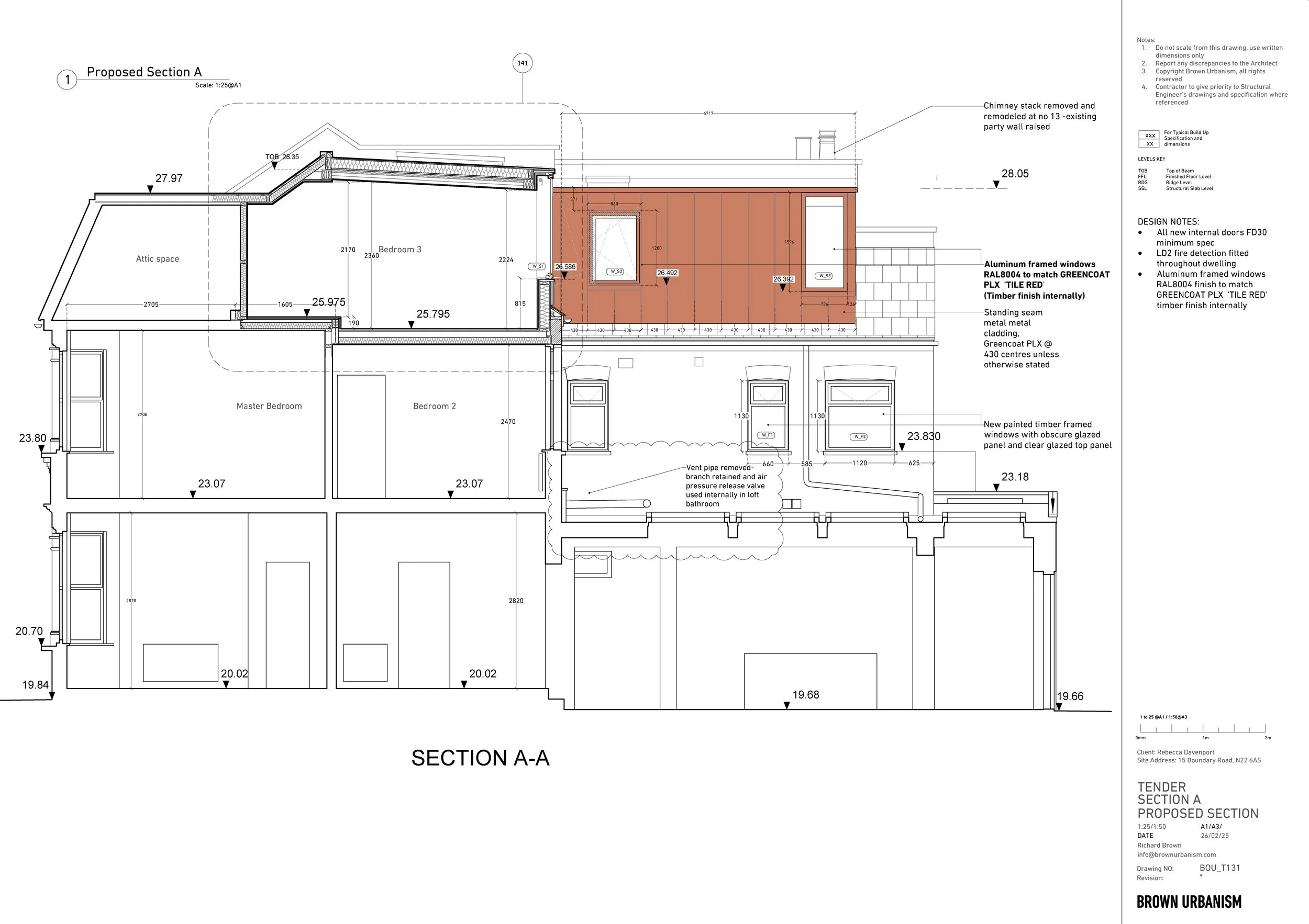
A refined red metal-clad addition delivers a guest bedroom, study, and bathroom with striking corner views. Alongside first-floor upgrades—including an ultra-efficient utility and family bathroom—it marks a growing family's next step toward a forever home and deeper roots in their neighbourhood.

Planning permission was sought and granted for a large L’shaped’ Loft dormer extension sitting over the main roof and outrigger.

At the first floor a large family bathroom and utility room support the everyday ablutions whilst within the new extensions above, two bedrooms and a shower room provide space for guests and for working from home.




We clad the new structures in a sustainable red coated standing seam cladding, (without clunky gutters) with matching red windows, echoing the local red common brick seen along the terrace whilst creating a clean and contemporary alternative to the ubiquitous grey roof extension.

The design features glazing to above ceiling level and around external corners to capture as much light as possible and to make the most of the high green views along the rear of the terrace.

  • Completed 2025

  • Haringey

  • Architect: Brown Urbanism

  • Structural Engineer: Martin Cooper Associates


Photographs by Findlay MacDonald

Copyright Findlay MacDonald

 

Drawings by Brown Urbanism